Search This Blog

Sunday, 15 July 2012

Builders Plans

So here is the Builder's version of our plan. Sorry if they look a bit warpy, they are a photo of a print out of the plans.Their are still some minor things wrong.
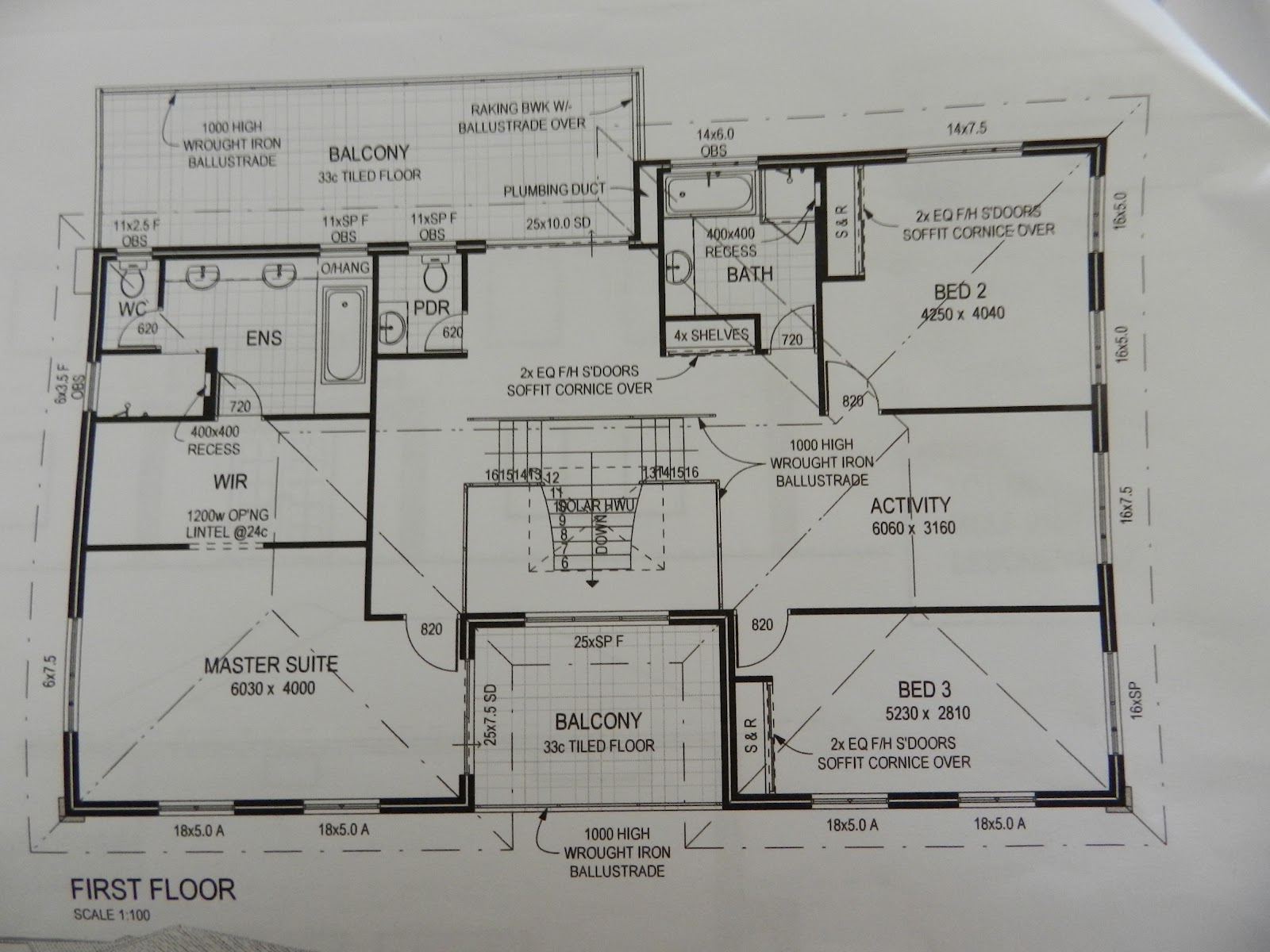
This is the top floor. Not much really changed from the original deign expect sizes of things and a balcony on 2 sides of the staircase void.

Our house will be made out of 2course brick (double the height of your ordinary brick). We added rendered columns to each side in an attempt to make it look less like a big brick wall. We are still not happy with the windows as every time we look at it we see a face with a hat. That's all you'll see now too.

This is the bottom floor. The main changes were a swap with the guest bedroom and study (something we had played around with many times before. After some visits to display homes in Perth we fell in love with the idea of having the laundry behind the kitchen and it solved our problem of the dining/kitchen area being massive. Thus decreasing the floor size and cost.

I'm still worried about the kitchen layout as I think their is not enough space for two people to comfortable work around the cook top. Jake is happy that he got his 3 meter bench. Still not sure where the dog door will go...

 Our entertainment room will be very different to any other. It will have a balcony that will allow us to have the dogs in the room but not on Jake's (planned) plush carpet. It will also have a sunken mattress into the floor. We are calling it a day bed. It is a 6m square room to allow for our 4.3m couch and 2 entries off of the balcony
The bathroom with Jake's walk in shower and my enough hob around the bath.

View from the back. 
Hope you enjoyed.


No comments:

Post a Comment